竹の塚パーク・ホームズ
お近くの物件のご紹介やご相談は、
お電話にてお問い合わせください。
新規リノベーション物件! 東武伊勢崎線「竹ノ塚駅」徒歩13分!西向きのお部屋です◎
東武大師線「大師前駅」徒歩15分
玄関には人感センサーが付いています!
防犯カメラやオートロックで安心のセキュリティ◎
ピックアップタグ
物件概要
東武大師線「大師前駅」徒歩15分
設備仕様
浄水機能付水栓
追焚き機能付
モニター付インターフォン
防犯カメラ
人感センサー
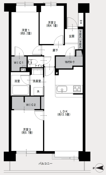
ウォークインクローゼット
マルチクローク
宅配ボックス












