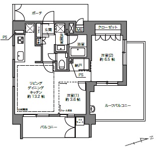
プレミスト神楽坂 新規リノベーション物件!東京メトロ東西線「神楽坂駅」より徒歩6分!5階東向きのお部屋です◎神楽坂の街並みと呼応する和モダンな隠れ家のような内装テイストで、ルーフバルコニー付きの角部屋です! 価格 1億1990万円 間取り 2LDK 専有面積 54.32㎡ 東京都新宿区西五軒町3-10 東京メトロ東西線「神楽坂駅」徒歩6分 東京メトロ有楽町線「江戸川橋駅」徒歩7分 都営大江戸線「牛込神楽坂駅」徒歩10分 スーパーマルエツ江戸川橋店まで約350m(徒歩5分)、セブンイレブン新宿東五軒町店まで約140m(徒歩2分)と日常の買い物が便利です!新耐震基準を満たしたマンショングレードの高い建物で、管理状態も良好◎心穏やかな暮らしを求める単身~DINKS層におすすめの、ディスポーザーや床暖房も完備された充実設備の物件です。 内覧予約 ピックアップタグ ペット可 即入居可 浴室乾燥機付 防犯カメラ 食洗機付 駐車場あり 物件概要 物件名 プレミスト神楽坂 所在地 東京都新宿区西五軒町3-10 価格 1億1990万円 交通 東京メトロ東西線「神楽坂駅」徒歩6分 東京メトロ有楽町線「江戸川橋駅」徒歩7分 都営大江戸線「牛込神楽坂駅」徒歩10分 築年月 2012年2月 間取り 2LDK 所在階 / 階建 5階/9階建 向き 東 バルコニー面積 8.36㎡ 建物構造 鉄筋コンクリート造(RC) 広さ 54.32㎡ 面積計測方式 壁芯 住宅性能 新耐震基準適合 管理費 13,040円 修繕積立金 12,490円 管理形態 全部委託(管理会社に全部委託) 管理会社 大和ライフネクスト株式会社 管理人状況 日勤 販売戸数 / 総戸数 1戸 / 71戸 現況 空家 引渡時期 即時 設備仕様 キッチン システムキッチン、IHクッキングヒーター、食器洗乾燥機、浄水器、ディスポーザー バス・トイレ オートバス、浴室乾燥機、温水洗浄便座 セキュリティ 防犯カメラ ペット 可能(細則あり) 設備 可動間仕切り、床暖房、エコキュート 共用設備 宅配ボックス、エレベーター、平置駐車場、機械式駐車場、ペット足洗い場 その他 用途地域 準工業地域 都市計画 土地権利 所有権 駐車場 設置あり空あり(26,000円~35,000円/月) 駐輪場 設置あり空あり(500円/月) バイク 設置あり空あり(5,000円/月) 周辺地図 リノバイならなんと!仲介手数料が無料! リノバイは、東京のリノベーション済みマンションに特化した物件をご紹介しております。 また、リノベマンションの専門家に事前に電話相談も可能です。 「今の希望にリノベマンションが合っているのか不安。」 「具体的なエリアで自分に合った物件を探したい。」 などお気軽にご相談ください。 \ リノベマンションのことならまずはリノバイにご相談ください。/ 事前相談をする リノバイで検索する 事前電話相談 内見の前に「希望条件の整理」や「空き状況の確認」を一緒に進められます。 まずは事前相談からどうぞ。 事前相談する(03-6555-4114) リノバイなら仲介手数料無料! リノバイでは他にも多数の物件を取り揃えております 。 あなた様のご希望に合った物件をご紹介させてください。 電話相談 内覧予約 条件の近い物件 この物件の募集は終了しました。 お近くの物件のご紹介やご相談は、お電話にてお問い合わせください。 ☎03-6555-4114 セザール池袋西 0円 / 2LDK / 50.58㎡ 東京都板橋区中丸町 東武東上線「大山駅」徒歩14分 東京メトロ有楽町線「要町駅」徒歩14分 JR山手線「池袋駅」徒歩20分 0円 この物件の募集は終了しました。 お近くの物件のご紹介やご相談は、お電話にてお問い合わせください。 ☎03-6555-4114 イニシアクラウド渋谷笹塚 0円 / 3LDK / 75.07㎡ 東京都渋谷区幡ヶ谷3丁目72-5 京王新線「幡ヶ谷駅」徒歩10分 京王線「笹塚駅」徒歩14分 0円 この物件の募集は終了しました。 お近くの物件のご紹介やご相談は、お電話にてお問い合わせください。 ☎03-6555-4114 ライオンズマンション上目黒 0円 / 2LDK / 51.84㎡ 東京都目黒区上目黒3丁目 東京メトロ日比谷線「中目黒駅」徒歩11分 東急東横線「中目黒駅」徒歩11分 東急田園都市線「池尻大橋駅」徒歩14分 0円 この物件の募集は終了しました。 お近くの物件のご紹介やご相談は、お電話にてお問い合わせください。 ☎03-6555-4114 グランツオーベル目白近衛町 108号室 0円 / 1SLDK / 70.20㎡ 東京都新宿区下落合2丁目 JR山手線「目白駅」徒歩6分 0円 この物件の募集は終了しました。 お近くの物件のご紹介やご相談は、お電話にてお問い合わせください。 ☎03-6555-4114 コスモ板橋前野町ヒルズ 0円 / 3LDK / 71.19㎡ 東京都板橋区前野町5丁目 都営三田線「志村三丁目駅」徒歩13分 0円 この物件の募集は終了しました。 お近くの物件のご紹介やご相談は、お電話にてお問い合わせください。 ☎03-6555-4114 インペリアル常盤松 0円 / 2LDK / 63.78㎡ 東京都渋谷区広尾3丁目1−2 東京メトロ銀座線「表参道駅」徒歩13分 JR山手線「渋谷駅」徒歩15分 東京メトロ日比谷線「広尾駅」徒歩15分 0円
この物件の募集は終了しました。 お近くの物件のご紹介やご相談は、お電話にてお問い合わせください。 ☎03-6555-4114 セザール池袋西 0円 / 2LDK / 50.58㎡ 東京都板橋区中丸町 東武東上線「大山駅」徒歩14分 東京メトロ有楽町線「要町駅」徒歩14分 JR山手線「池袋駅」徒歩20分 0円
この物件の募集は終了しました。 お近くの物件のご紹介やご相談は、お電話にてお問い合わせください。 ☎03-6555-4114 イニシアクラウド渋谷笹塚 0円 / 3LDK / 75.07㎡ 東京都渋谷区幡ヶ谷3丁目72-5 京王新線「幡ヶ谷駅」徒歩10分 京王線「笹塚駅」徒歩14分 0円
この物件の募集は終了しました。 お近くの物件のご紹介やご相談は、お電話にてお問い合わせください。 ☎03-6555-4114 ライオンズマンション上目黒 0円 / 2LDK / 51.84㎡ 東京都目黒区上目黒3丁目 東京メトロ日比谷線「中目黒駅」徒歩11分 東急東横線「中目黒駅」徒歩11分 東急田園都市線「池尻大橋駅」徒歩14分 0円
この物件の募集は終了しました。 お近くの物件のご紹介やご相談は、お電話にてお問い合わせください。 ☎03-6555-4114 グランツオーベル目白近衛町 108号室 0円 / 1SLDK / 70.20㎡ 東京都新宿区下落合2丁目 JR山手線「目白駅」徒歩6分 0円
この物件の募集は終了しました。 お近くの物件のご紹介やご相談は、お電話にてお問い合わせください。 ☎03-6555-4114 コスモ板橋前野町ヒルズ 0円 / 3LDK / 71.19㎡ 東京都板橋区前野町5丁目 都営三田線「志村三丁目駅」徒歩13分 0円
この物件の募集は終了しました。 お近くの物件のご紹介やご相談は、お電話にてお問い合わせください。 ☎03-6555-4114 インペリアル常盤松 0円 / 2LDK / 63.78㎡ 東京都渋谷区広尾3丁目1−2 東京メトロ銀座線「表参道駅」徒歩13分 JR山手線「渋谷駅」徒歩15分 東京メトロ日比谷線「広尾駅」徒歩15分 0円