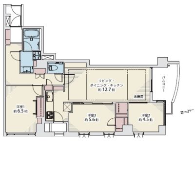
レジェンド高田馬場DUE 新規リノベーション物件!JR山手線「高田馬場駅」より徒歩4分!5階南西向きで陽当たり・眺望良好なお部屋です◎ 価格 1億2980万円 間取り 3LDK 専有面積 78.23㎡ 東京都新宿区高田馬場1丁目22-5 JR山手線「高田馬場駅」徒歩4分 西武新宿線「高田馬場駅」徒歩4分 東京メトロ東西線「高田馬場駅」徒歩5分 セブンイレブン約20m、ちょっとした用事もすぐ対応できる! 戸塚第二小学校まで約260m、通学の負担が少ない◎ペット飼育相談可能(細則有)のため、大切なペットと一緒に暮らせます♪ 内覧予約 ピックアップタグ オートロック ペット可 即入居可 浄水機付 浴室乾燥機付 食洗機付 物件概要 物件名 レジェンド高田馬場DUE 所在地 東京都新宿区高田馬場1丁目22-5 価格 1億2980万円 交通 JR山手線「高田馬場駅」徒歩4分 西武新宿線「高田馬場駅」徒歩4分 東京メトロ東西線「高田馬場駅」徒歩5分 築年月 2001年12月 間取り 3LDK 所在階 / 階建 5階/地下1階付7階建 向き 南西 バルコニー面積 5.52 建物構造 RC 広さ 78.23㎡ 面積計測方式 壁芯 住宅性能 管理費 16,660円 修繕積立金 18,460円 管理形態 管理会社に全部委託 管理会社 日本ハウズイング(株) 管理人状況 日勤 販売戸数 / 総戸数 総戸数35戸 現況 空室(空家) 引渡時期 即可(残代金支払後) 設備仕様 キッチン システムキッチン、食洗機、浄水器 バス・トイレ 浴室換気乾燥機、温水洗浄便座付トイレ、保温浴槽 セキュリティ オートロック ペット ペット飼育相談可能(要承認・使用細則有) 設備 床暖房(LD)、エアコン先行配管(洋室1)、LED照明 共用設備 エレベーター、宅配ボックス その他 用途地域 第一種中高層住居専用地域・商業地域(一中) 都市計画 土地権利 所有権 駐車場 空無(空き区画はサブリース中、希望者がある場合はサブリース会社と協議の上、返却後に契約可能) 駐輪場 バイク 周辺地図 リノバイならなんと!仲介手数料が無料! リノバイは、東京のリノベーション済みマンションに特化した物件をご紹介しております。 また、リノベマンションの専門家に事前に電話相談も可能です。 「今の希望にリノベマンションが合っているのか不安。」 「具体的なエリアで自分に合った物件を探したい。」 などお気軽にご相談ください。 \ リノベマンションのことならまずはリノバイにご相談ください。/ 事前相談をする リノバイで検索する 事前電話相談 内見の前に「希望条件の整理」や「空き状況の確認」を一緒に進められます。 まずは事前相談からどうぞ。 事前相談する(03-6555-4114) リノバイなら仲介手数料無料! リノバイでは他にも多数の物件を取り揃えております 。 あなた様のご希望に合った物件をご紹介させてください。 電話相談 内覧予約 条件の近い物件 この物件の募集は終了しました。 お近くの物件のご紹介やご相談は、お電話にてお問い合わせください。 ☎03-6555-4114 エバーグリーンパレス新宿 0円 / 2LDK / 52.76㎡ 東京都新宿区新宿6丁目 東京メトロ副都心線「東新宿駅」徒歩4分 東京メトロ丸ノ内線「新宿三丁目駅」徒歩9分 西武新宿線「西武新宿駅」徒歩14分 0円 この物件の募集は終了しました。 お近くの物件のご紹介やご相談は、お電話にてお問い合わせください。 ☎03-6555-4114 フェアロージュ永福町 0円 / 2LDK / 67.45㎡ 東京都杉並区和泉2丁目13-17 京王線「明大前駅」徒歩8分 京王井の頭線「永福町駅」徒歩8分 0円 この物件の募集は終了しました。 お近くの物件のご紹介やご相談は、お電話にてお問い合わせください。 ☎03-6555-4114 カインドステージ竹ノ塚 0円 / 3LDK / 71.45㎡ 東京都足立区西保木間3丁目22-22 東武伊勢崎線「谷塚駅」徒歩15分 東武伊勢崎線「竹ノ塚駅」徒歩23分 0円 NEW ベイクレストタワー809 1億2800万円 / 2LDK / 62.42㎡ 東京都港区港南3丁目9ー33 JR山手線「品川駅」徒歩17分 りんかい線「天王洲アイル駅」徒歩17分 東京モノレール「天王洲アイル駅」徒歩17分 0円 オーベル高田馬場 1億1000万円 / 2LDK / 63.26㎡ 東京都新宿区高田馬場4-2-26 JR山手線「高田馬場駅」徒歩1分 東京メトロ東西線「高田馬場駅」徒歩4分 西武新宿線「高田馬場駅」徒歩4分 0円 この物件の募集は終了しました。 お近くの物件のご紹介やご相談は、お電話にてお問い合わせください。 ☎03-6555-4114 ライオンズマンション志村三丁目 0円 / 2LDK / 52.20㎡ 東京都板橋区相生町7-7ライオンズマンション志村三丁目 都営三田線「志村三丁目駅」徒歩6分 0円
この物件の募集は終了しました。 お近くの物件のご紹介やご相談は、お電話にてお問い合わせください。 ☎03-6555-4114 エバーグリーンパレス新宿 0円 / 2LDK / 52.76㎡ 東京都新宿区新宿6丁目 東京メトロ副都心線「東新宿駅」徒歩4分 東京メトロ丸ノ内線「新宿三丁目駅」徒歩9分 西武新宿線「西武新宿駅」徒歩14分 0円
この物件の募集は終了しました。 お近くの物件のご紹介やご相談は、お電話にてお問い合わせください。 ☎03-6555-4114 フェアロージュ永福町 0円 / 2LDK / 67.45㎡ 東京都杉並区和泉2丁目13-17 京王線「明大前駅」徒歩8分 京王井の頭線「永福町駅」徒歩8分 0円
この物件の募集は終了しました。 お近くの物件のご紹介やご相談は、お電話にてお問い合わせください。 ☎03-6555-4114 カインドステージ竹ノ塚 0円 / 3LDK / 71.45㎡ 東京都足立区西保木間3丁目22-22 東武伊勢崎線「谷塚駅」徒歩15分 東武伊勢崎線「竹ノ塚駅」徒歩23分 0円
NEW ベイクレストタワー809 1億2800万円 / 2LDK / 62.42㎡ 東京都港区港南3丁目9ー33 JR山手線「品川駅」徒歩17分 りんかい線「天王洲アイル駅」徒歩17分 東京モノレール「天王洲アイル駅」徒歩17分 0円
オーベル高田馬場 1億1000万円 / 2LDK / 63.26㎡ 東京都新宿区高田馬場4-2-26 JR山手線「高田馬場駅」徒歩1分 東京メトロ東西線「高田馬場駅」徒歩4分 西武新宿線「高田馬場駅」徒歩4分 0円
この物件の募集は終了しました。 お近くの物件のご紹介やご相談は、お電話にてお問い合わせください。 ☎03-6555-4114 ライオンズマンション志村三丁目 0円 / 2LDK / 52.20㎡ 東京都板橋区相生町7-7ライオンズマンション志村三丁目 都営三田線「志村三丁目駅」徒歩6分 0円