キャッスルマンション千早町
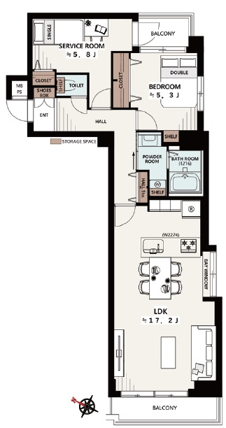
新規リノベーション物件!副都心線・有楽町線「千川駅」より徒歩5分!3階南西向きのお部屋です◎LDK約17帖の陽当り良好の居住空間です!
西武池袋線「東長崎駅」徒歩14分
東京メトロ有楽町線「要町駅」徒歩19分
浴室乾燥機付きバスルームは保温浴槽を採用しており快適なバスタイムを過ごせます◎
廊下にはコンセント付きの収納があり、可動棚で使い方も自在!
徒歩8分以内に買物施設が集積しており、駅近ながらも落ち着いた住環境です♪
目の前に高い建物がなく、風通し・陽当たりが良い空間となっています。
ピックアップタグ
物件概要
西武池袋線「東長崎駅」徒歩14分
東京メトロ有楽町線「要町駅」徒歩19分












